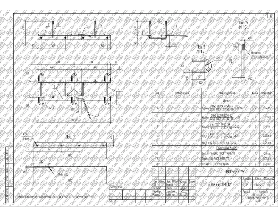
Траверса ТМз12
Категорія: Траверси високовольтні Т, ТМ
Траверса ТМз12 призначена для комплектації анкерних, кінцевих та кутових опор серій А10, К10, КА10, ВА10 на базі віброваних стояків серії НВ105.
Виготовляється згідно з робочим кресленням 180.2н/5-15 типів проєкту 180.2н та забезпечує надійне кріплення для ліній СІП-3 напругою 6 та 10 кВ з ізольованими проводами.
Ця траверса є міцним та надійним елементом конструкцій високовольтних ліній електропередач, забезпечуючи довговічність та безпечну експлуатацію електромереж.









